彩虹嘉園三室兩廳現代簡約
現代簡約 | 三居 | 120.0㎡
網頁預約
免費量尺
上門量房
設計方案
到門店看方案
簽訂合同
準備材料
進場施工
您當前的位置:
孫鑫設計師
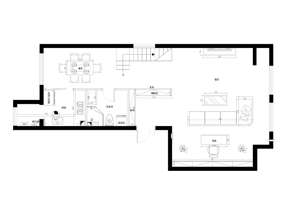
戶型: 復式
風格: 現代簡約
面積: 185.0㎡
介紹:
此戶型采用簡約的現代設計風格,因為原戶型除了外墻沒有格局布置,布局需要全部重新設計,在結構上進行改動,加建二層打造復式結構。后期在家具、配飾上做了精心的布置。客廳地面選用米黃色淺色玻化磚,讓居室現得干凈利落。墻面用筒燈的燈光渲染,給人一種朦朧的意境美。尤其是電視背景墻和掛畫,體現了現代低調的風格。整體風格莊重而不失溫馨。
算算這樣裝修需要多少錢?
有參考,花錢更有譜
新用戶專享優惠