【梵客家裝】12萬精裝中式風格三居室
中式 | 三居 | 150.0㎡
網頁預約
免費量尺
上門量房
設計方案
到門店看方案
簽訂合同
準備材料
進場施工
您當前的位置:
張曉紅設計師
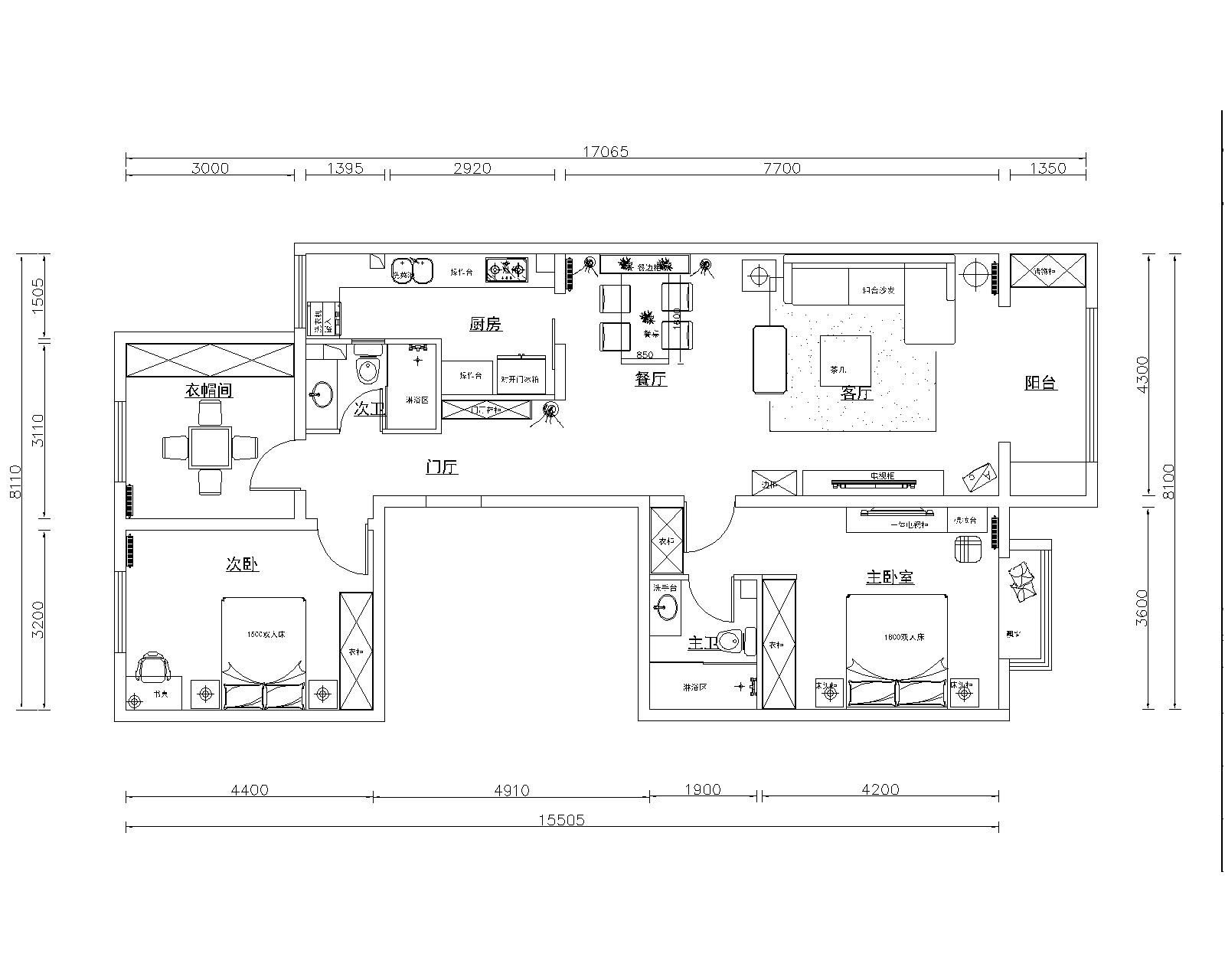
戶型: 三居
風格: 現代簡約
面積: 120.0㎡
介紹:
客戶是90后北京大男孩,父母給買的新房子,裝修自己全權負責,也是以前客戶介紹的。裝修風格是簡約風格,因為就一個人居住,所以小臥室用來做衣帽間。除了客廳電視背景和主臥室的床頭背景,整體沒有做多余的裝飾,顯得簡約大氣。餐廳后來選擇的是1.8米的長餐桌,方便業主平時的朋友聚會??蛷d的直線吊頂也增加了客廳的輔助光源,為聚會增添不同的燈光氛圍。而主臥室因為背景墻的設計取消了主燈光源,有助于業主安穩的睡眠。
算算這樣裝修需要多少錢?
有參考,花錢更有譜
新用戶專享優惠