您當前的位置:
來源:梵客家裝 關鍵詞:梵客家裝 格局改造 老房改造 小戶型 室內設計 室內裝修 14140 2022-07-13
這是一個三口之家,為了孩子上學,業主置換了這套學區房,并通過朋友介紹,找到梵客家裝的設計師白士衛老師。其實最初,業主也對比過其他裝修公司,但是梵客的服務及白老師的方案,徹底打動了業主…

建筑面積:90平
使用面積:68平
房型結構:2室1廳1衛
裝修風格:現代簡約
居住人口:三口之家
業主要求:收納空間多
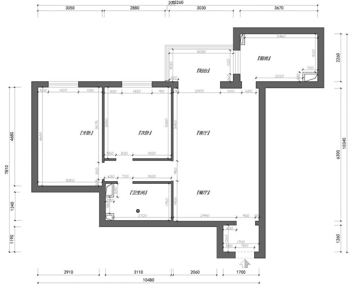
由于小區位置受限,業主當時在買房時沒有精心挑選戶型,也不了解戶型結構。裝修時才發現戶型有缺陷,比如廚房門直對入戶門,視覺不好又影響客廳布局;衛生間較大,但功能不合理;臥室門正對衛生間門等。
白老師經過現場實地測量,初步確定改造方案。第一輪溝通就出了3套設計方案,初步確定改造內容。后期溝通中反復推敲細節,拿捏尺寸,最終確定施工方案。從最初見面到定稿,一共設計了3稿,只用了15天。

為了空間更合理地利用,規避戶型缺陷,提升使用舒適度,白老師做了如下調整,通過原始平面圖和平面布置圖,即可看出不同:
原始平面圖 ↓

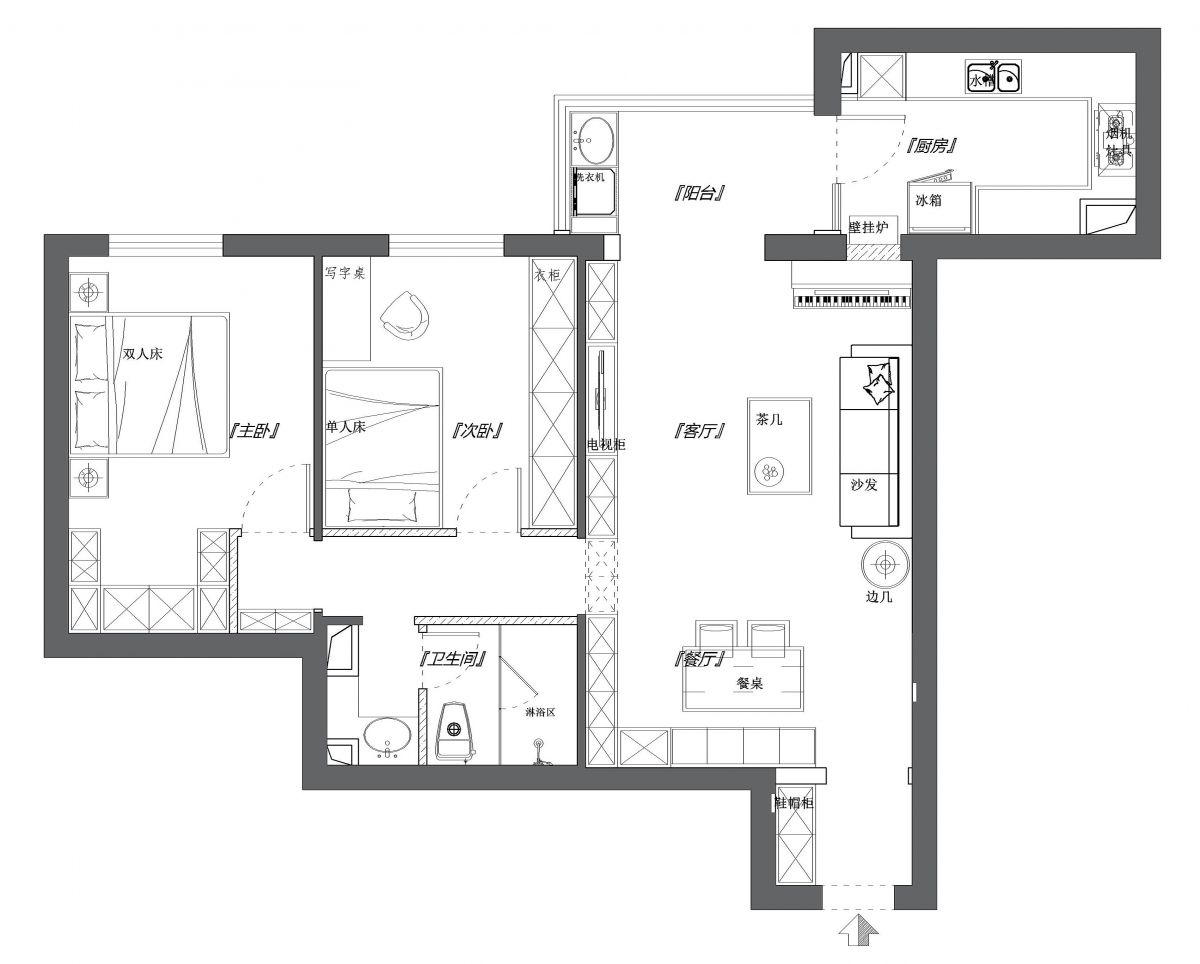
平面布置圖 ↓

解決方案:
廚房門改動
次臥門改動
衛生間干濕分離
主臥室門改動,增加衣帽間
廚房門改動:原結構中,入戶門正對廚房門,視覺不美觀,進入廚房的動線單一且被固定,客廳布局受限,沙發和電視的位置被迫固定。而且廚房采光受限,客廳陽臺管線交錯,利用率低,變成了雜物陽臺,也影響了廚房窗戶的使用。通過改變廚房門的開啟位置,增加了廚房空間的功能性和利用率,動線的調整,使沙發和電視的擺放更加合理,并極大地豐富了客餐廳的收納功能,客廳陽臺也得到了更好的利用。
次臥門改動:原結構中,因次臥門開啟的位置,導致次臥的收納功能受限。次臥門正對衛生間門,不雅觀。調整次臥門的位置后,次臥的衣柜做了整面墻,收納能力直接提升一倍。
衛生間干濕分離:原結構中,衛生間的空間相對較大,但是功能布局不合理,洗手盆,坐便,淋浴區,洗衣機擺放無序,且無干濕分區。通過增加墻體隔斷,將洗手盆獨立出來,作為干區。坐便和淋浴區之間使用玻璃隔斷,再次分區,達到三分離的劃分,在提升使用率的同時,也可兼顧多人同時使用的便利。
主臥室門改動,并增加衣帽間:原結構中,過道的盡頭正對主臥門,收納單一,衣柜擺放過于常規,從整體上看,浪費空間多。通過改變門的位置,調整結構,新建墻體也有玄關作用,緩解過道正對臥室門的尷尬。主臥內嵌衣帽間,提升收納功能,滿足女主需求,門口處利用凹槽,做薄書柜,豐富收納分區。
動線圖 ↓

多條動線重合處,暢通無阻礙
主動線以直線為主,轉折較少
家務動線清晰,重復區域較少
訪客動線主要集中在客廳,對家人影響小
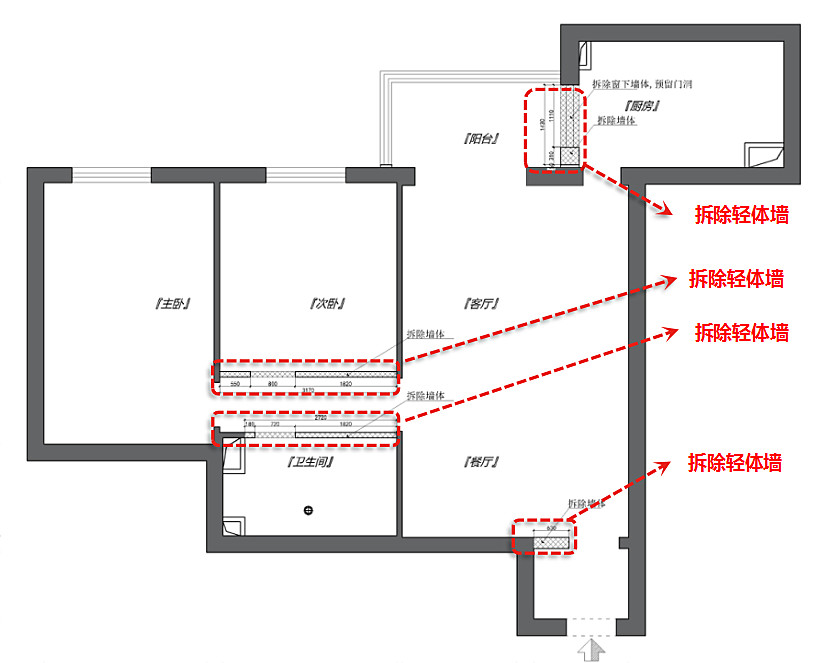
墻體拆除圖 ↓

新建墻體圖 ↓

設計師最滿意:廚房、衛生間的改造
業主最滿意:衣帽間,廚房、衛生間干濕分區的改造


↑ 衛生間三分區設計,使用更方便,彼此互不干擾
↓ 廚房合理規劃,充分利用空間,提高烹飪效率


從開工到完工,共65個工作日,業主對裝修效果非常滿意。下面,就為大家詳細介紹 ↓
白老師在實地測量時,總結出以下問題:
戶型結構有缺陷
空間沒有得到充分利用
設計及材料比較老舊
整體欠缺美觀度和實用性

經過3輪設計方案及15天的溝通,最終,業主選擇了梵客家裝。我們開工了!

拆除時,要先斷開電路,用臨時施工電箱。保護好燃氣表,關閉用氣總閥門,檢查是否有漏氣現象。注意用水,防止水滲到樓下。嚴禁拆除涉及安全的結構墻體。拆除的垃圾要堆放整齊,時刻保證工地整潔。

水電施工階段,走線要遵循橫平豎直的規范,排列整齊,紅色強電,藍色弱電。交叉處用錫箔紙纏繞隔開,避免干擾。確保電上水下,嚴禁水電同槽。線頭必須包頭打卷。

次臥門改動時,需要新建墻體。考慮到承重問題,一般新建墻體建議做輕質隔墻,用比較輕質的材料。新建墻體外側在抹水泥前要加掛鐵絲網,以增加墻體和外面貼瓷磚的穩固性,避免新建輕體墻出現開裂、抹灰層出現脫落等現象。
地暖管安裝要根據不同房間的保溫、散熱狀況、房間功能、家具擺放、地面鋪材選擇、熱源可調節等狀況,有針對性地進行地板采暖系統設計。建議選擇性能優異的管材和保溫材料,保溫效果好有助于節能。

鋪地磚時,邊鋪貼邊用水平儀或靠尺找平檢查,發現問題及時修正;。磚面上溢出水泥砂漿用抹布擦凈。勾縫時不能遺漏。 鋪貼墻磚時,自下而上進行整,必須當天完 成,或者將接頭處留在轉角處。磚的最下面一層應留到地磚鋪貼完成后,再補貼。
還要注意,空鼓率、平整度、垂直度、陰陽角、接縫等都是貼磚驗收的重點。鋪完地磚,工人要做美縫處理,表面會光滑如瓷,視覺感更好,而且不易藏污納垢。

墻面施工非常重要,要經過墻面基層處理、涂布一遍環保墻固、批刮一遍底層石膏基、粘貼墻面專用抗裂網格、批刮兩遍膩子粉、涂布一遍底漆、涂布兩遍面漆七大步驟。乳膠漆涂刷完之后4個小時就會干燥,但干燥的漆膜還沒有達到一定的硬度,這就要養護,7-10天之內不要有擦洗或任何接觸墻面的行為。

家里東西比較多,需要分門別類做收納,才能整齊有序。定制家具因人而異的內部細分,更能滿足業主的需求,還能充分利用尷尬角落,將空間利用做到最大化。
玄關柜、電視背景墻、餐邊柜、衣柜等,都設計了定制家具,大大提升了儲物能力,讓小家煥然一新。最后,一起看看裝修成果吧~
↑ 玄關柜,小區域大作用。這里不僅有掛衣處、衣帽鏡,還有鞋凳,換鞋的時候可以坐在這里。柜體中間的鏤空設計,放進出門隨手物品。柜子下方留空處,為每天要換的鞋預留了空位,而且方便清潔打掃。
↑ 客廳,收納柜與電視背景墻結合,將儲物做到極致。抽屜以及不同大小的柜子,方便各類物品的存放。嵌入式空調的設計,更整體統一 ,提升空間整潔度。
↑ 餐廳,利用兩堵墻打造的L型餐邊柜,大大延伸儲物功能。卡座設計,現代、時尚,有一種小資情調,提升餐廳的浪漫情懷。卡座下方還能存放物品,再次強化收納功能。
↑ 次臥,頂天立地的衣柜設計,整體又美觀,每寸空間都不浪費。沒有縫隙,不易藏污納垢,打理也很方便。
↑ 廚房,依據空間布局設計的U型櫥柜,擁有獨立備餐空間,洗滌、備餐、烹飪一氣呵成,下廚高效便捷。吊柜與地柜雙向收納,大大擴充了儲物功能。
↑ 陽臺,被規劃為洗衣區,嵌入式洗衣機、洗手臺、收納柜一體化設計,整體又美觀,洗晾衣服也更方便。
戶型不合理怎么破?有梵客專業設計師為你支招,報名預約設計師,為您量身定制裝修方案,打造高品質的舒適家。

-end-
聲明:本文由梵客家裝提供,轉載請聲明出處!
讓家一大再大的體驗
已有 86 位業主獲得服務
新用戶專享優惠