您當前的位置:
來源:梵客家裝 關鍵詞:梵客家裝 新中式 室內設計 室內裝修 13423 2022-07-13
新中式風格誕生于中國傳統文化復興的新時期,是將中式元素與現代材質巧妙兼柔,具有含蓄美,體現中國風。這種風格繼承了明清時期家居理念的精華,將其中的經典元素提煉并加以豐富,給傳統家居文化注入新氣息。
新中式風格以中國傳統古典文化作為背景,紅木、青花瓷、紫砂茶壺及一些紅木工藝品等都體現了濃郁的東方之美。裝飾材料會選絲、紗、織物、壁紙、玻璃、仿古瓷磚、大理石等。飾品多為瓷器、陶藝、中式窗花、字畫、布藝以及具有一定含義的中式古典物品等。
新中式風格非常講究空間的層次感,在需要隔絕視線的地方,使用中式的屏風或窗欞、中式木門、工藝隔斷、簡約化的中式“博古架”,展現出中式家居的層次之美。
新中式風格的家具搭配以古典家具或現代家具與古典家具相結合,中國古典家具以明清家具為代表,在新中式風格家具配飾上多以線條簡練的明式家具為主,比較簡約。
業主是一對中年夫婦,平日工作忙碌,希望回到家能享受恬靜安逸的舒適生活。梵客家裝的設計師王茜根據業主的需求,將品質、舒適、輕奢等設計元素融入到整個空間,為業主打造了一個新中式風格的溫馨居所。
建筑面積:110平米
裝修風格:新中式
房屋戶型:3室2廳1廚2衛
居住人口:二人世界
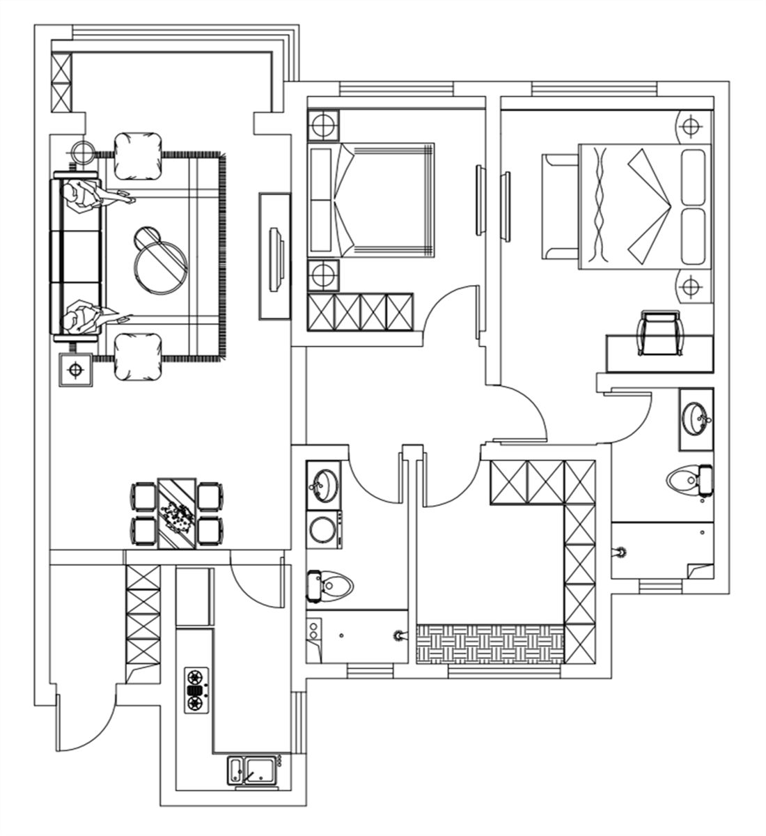
這是一套3室2廳1廚2衛的新房,房型基本空間格局比較規整,動靜空間(客廳、臥室)劃分合理,結構上沒有做改變。
配色上主要選擇暖灰色和深褐色,體現莊重與優雅的格調,這兩種色彩濃厚成熟,可以增加空間的溫馨感和穩重感。
原始平面圖

平面布置圖

客廳的整個空間色彩典雅華貴,再加入一些現代元素,呈現時尚品位。客廳采用暖色系來打造,主色調為米色,棕色色來過度,局部亮色點綴。

客廳區域不是太大,在家具的選擇上以簡約線條感的家具為主,這樣能使空間看起來更加通透寬闊。

電視背景墻用木質的簡約線條做出符合主題的幾何結構,空間裝飾多采用硬朗的直線條,頂面造型也以木線條來裝飾,與整體和諧統一。
配飾趨于簡潔,并沒有很多華麗的裝飾。精巧的燈飾、雅致的掛畫使整個居室在古韻情懷中滲透著現代氣息。

客廳、餐廳在一個大空間,在設計的時候,設計師就考慮要用一個木質屏風的形式將功能空做一個劃分。
體現新中式風格有四大元素:中式氛圍,中式書房,中式圈椅,佛頭。
餐廳的設計,就是選了具有新中式代表性的深木色圈椅,再搭配簡約線條燈飾,在滿足大空間風格的前提下,力求時尚簡約、輕奢溫暖,使整個空間個性十足。

整個空間以輕奢、休閑為主,是卸下疲憊之后的休憩之所,即便是陽臺小空間也要充分呈現出一種輕松、閑適。
休閑陽臺,色彩搭配上讓空間的寂靜感表現的更為強烈,地面和頂面用一樣的木色,整體和諧。雅座榻榻米,有格調生活的品質感,也是慵懶情懷的體現。
業主有很多收藏品,于是專門打造了一個博古架,既能將業主的心好之物陳列展示,也能美化空間,使生活的實用性和對傳統文化的追求同時得到了滿足。

主臥的設計主要是圍繞著都市風尚,整個空間凸顯品位與現代感,飾物的造型干凈利落,灰色調高貴雅致,深淺不一的抱枕增加了空間層次感。整個臥室都顯得柔軟舒適。

當然,打造一個新中式風格的家,不僅要對傳統文化諳熟于心,還要對現代風格有所了解,才能更好的將二者融為一體。

-end-
聲明:本文由梵客家裝提供,轉載請聲明出處!
讓家一大再大的體驗
已有 86 位業主獲得服務
新用戶專享優惠